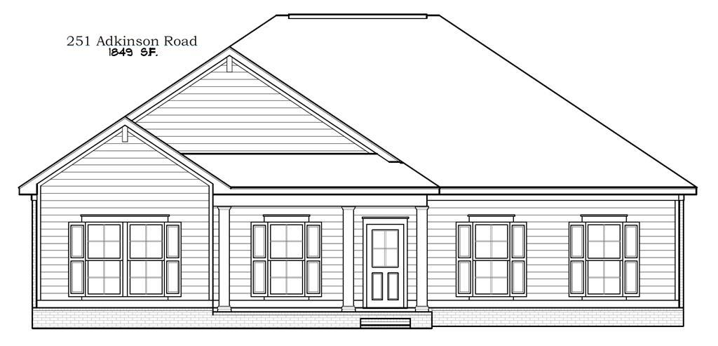
251 Adkinson Road, Newton, AL 36352
Southeast Alabama Association of REALTORS Listing Number: 210053
251 Adkinson Road, Newton, AL 36352
1849 Sq.ft · 3 Bedrooms · 2 Full Bathrooms
$287,500
View Original Image
Enter Your Information to Receive Updates on This Property
Your Contact Info Will Be Shared with the Listing Agent
Name
Email
Submit
Successfully Submitted!
Continue
Failed!
Go Back
Details
Link Copied
Send To
Name
Email
From
Your Name
Your Email
Your Phone
Subject
Message
Submit
Successfully Submitted!
Continue
Failed!
Go Back
Additional Media